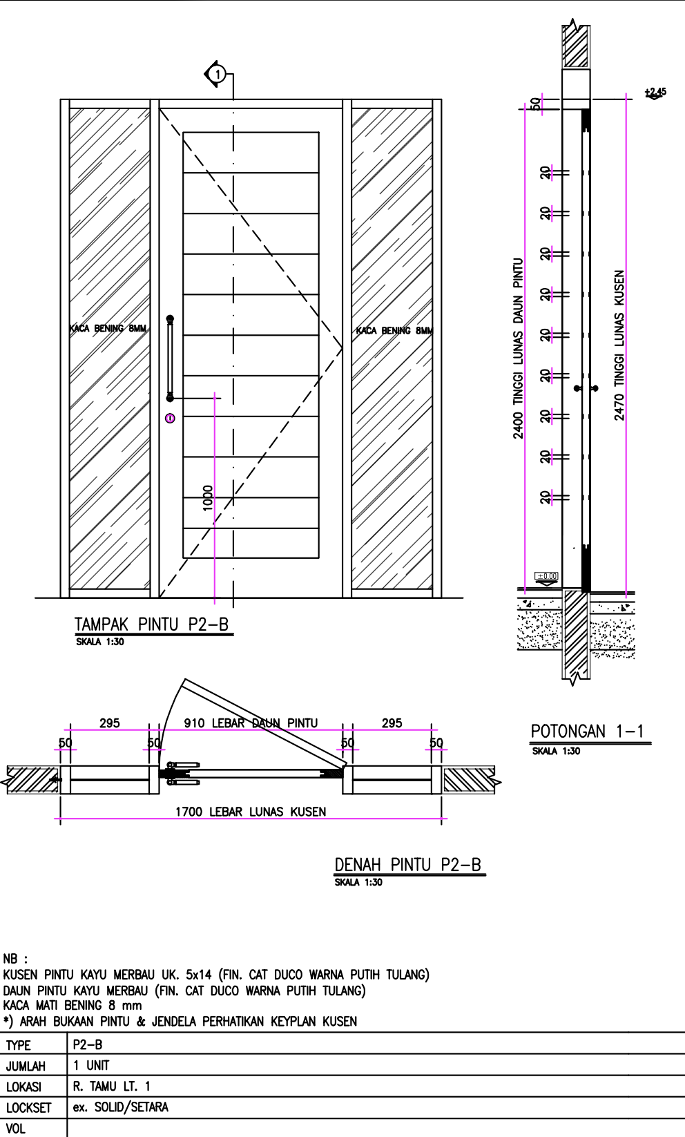
• P2-B
    Notes: Pengadaan handle bar-nya dari David.
    Jadi tidak perlu handle bar.